We are often asked what is included in a new home at Oakdale Residential Village. The simple answer is we aim to have everything done so all you need do is move in and experience the peace of mind of living in a secure community environment.
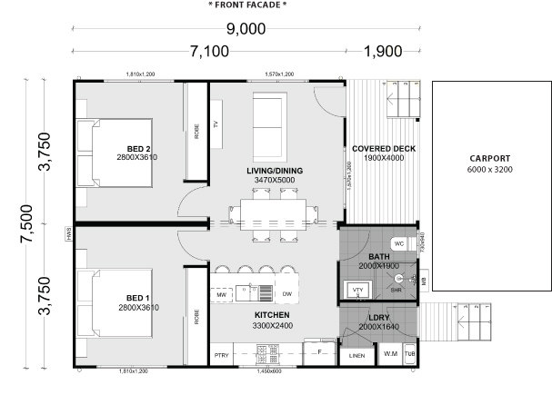
One of the homes we have available is the Nattai which is a 2-bedroom home with either a gable or skillion roof with 61.5m2 of living space and a deck area of 7.6m2. It is a quality built modular home supplied by Hi-Tech Modular Homes with the inclusions listed below as standard in the price.

NATTAI WITH GABLE ROOF (ALSO AVAILABLE WITH SKILLION ROOF).
STANDARD INCLUSIONS
- Air conditioner (5kw)
- Ceiling fans to bedrooms
- Downlights throughout
- Carport & slab 3.2m x 6.0m
- Standard Floor coverings (hybrid flooring for living areas, carpets to bedrooms. Wet areas fully tiled.
- Standard window coverings throughout (pull down blinds).
- Standard landscaping package (turf and gardens)
- Colorbond fences to side and rear boundaries
- Connection to all services, including NBN
- 2000litre water tank for bathroom, laundry and garden use
- Merbau deck with wire balustrades
- Garden shed (3m x 3m)
- TV antenna
- Clothes line
To comply with government regulations, the homes have been designed to fit the constraints of the available sites however the option is available to customise the design provided we work within those constraints. It is certainly possible to customise the floorplan layout should you so wish.
In collaboration with Hi-Tech Modular Homes, we can work closely with you to accommodate modifications to your design to provide for any mobility issues you may now have or believe you may have sometime in the future. Better to plan for any changes at the build stage rather than contemplating renovations later.
We will be launching more new home designs in coming weeks so please keep an eye out for those.
If you have any questions, please don’t hesitate to contact Allan on 0413 943
296 or email info@oakdaleresidentialvillage.com.au